Inicio
Sobre nosotros
Servicios
Construccion de viviendas
Rehabilitacion
Urbanismo
Informes tecnicos
Proyectos
Contacto
¡Solicita presupuesto!
Primer plano de una baldosa con un estampado azul y blanco que presenta un motivo floral central, probablemente perteneciente a un juego de cerámica decorativa.
Español
es
English
en
Inicio
Sobre nosotros
Servicios
Construccion de viviendas
Rehabilitacion
Urbanismo
Informes tecnicos
Proyectos
Contacto
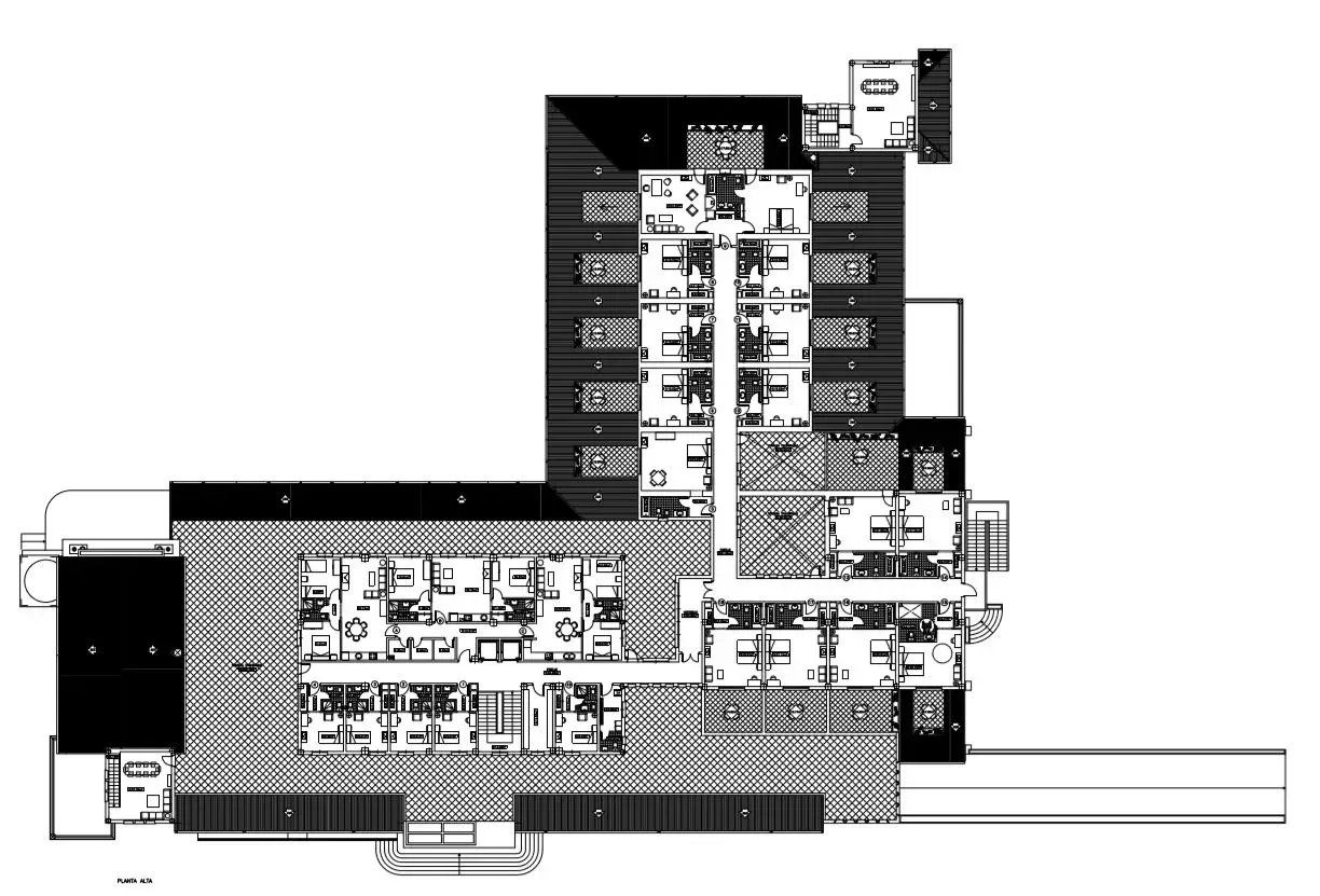
Complejo turístico en Málaga
Complejo turístico en Málaga
pROMOTOR
:
privado
Localidad
: málaga
año
:
2007
Button
Button
Button
Button
< Entrada más antigua
Entrada más reciente >
Edificio de oficinas en Madrid
Por FL-arquitectos S02535878000
•
16 de marzo de 2026
Oficinas en Madrid
Restauración y rehabilitación de parque infantil
Por FL-arquitectos S02535878000
•
16 de marzo de 2026
Parque público infantil en Guadix
Vivienda unifamiliar en Granada 2
Por FL-arquitectos S02535878000
•
16 de marzo de 2026
Vivienda Unifamiliar en Granada
Vivienda unifamiliar en Granada 1
Por FL-arquitectos S02535878000
•
16 de marzo de 2026
Vivienda Unifamiliar en Granada
Vivienda Unifamiliar en Malaga
Por FL-arquitectos S02535878000
•
16 de marzo de 2026
Vivienda Unifamiliar en Málaga